Case de vanzare Vaslui

📅 Adăugat: 03.04.2025 21:17

📍 Locație: Vaslui

🏡 Tipul Proprietății: Casă

💰 Preț: 131 000,00 €

🏞️ Tip Teren: Intravilan

📏 Dimensiuni: 1.00 Metri pătrați (mp)

✉️ Email: [email protected]

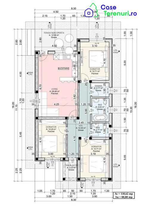
Ghica Residence va ofera spre vanzare case individuale la cheie situate in localitatea Vaslui, Strada Stefan Procopiu, zona Delea, ce fac parte dintr-un ansamblu de case cu circuit inchis.1. CASA MARE - Imobilul este dispus pe un singur nivel si este compus din : 3 dormitoare, living, bucatarie, 2 bai, dressing, hol si terase. Pretul unei case este de 131.000 euro cu TVA inclus in pret. Suprafata terenului pe care este amplasat imobilul este de 400mp. SU = 88.80 mp.Casele de vand la stadiul finisat si racordate la toate utilitatile: curent, gaz, apa si canalizare.*TVA-ul de 9%Pentru informatii suplimentare, programarea unei vizionari sau pentru a va prezenta oferta noastra completa, nu ezitati sa ne contactati la 07******87.

Hartă Oraș

Contactează vânzătorul pentru "Case de vanzare Vaslui"

⬅️ Înapoi