Apartament 2 Camere tip Studio de la Dezvoltator/Melchisedec Residence

📅 Adăugat: 03.04.2025 16:45

📍 Locație: Galați

🏡 Tipul Proprietății: Casă

💰 Preț: 65 800,00 €

🏞️ Tip Teren: Intravilan

📏 Dimensiuni: 1.00 Metri pătrați (mp)

✉️ Email: [email protected]

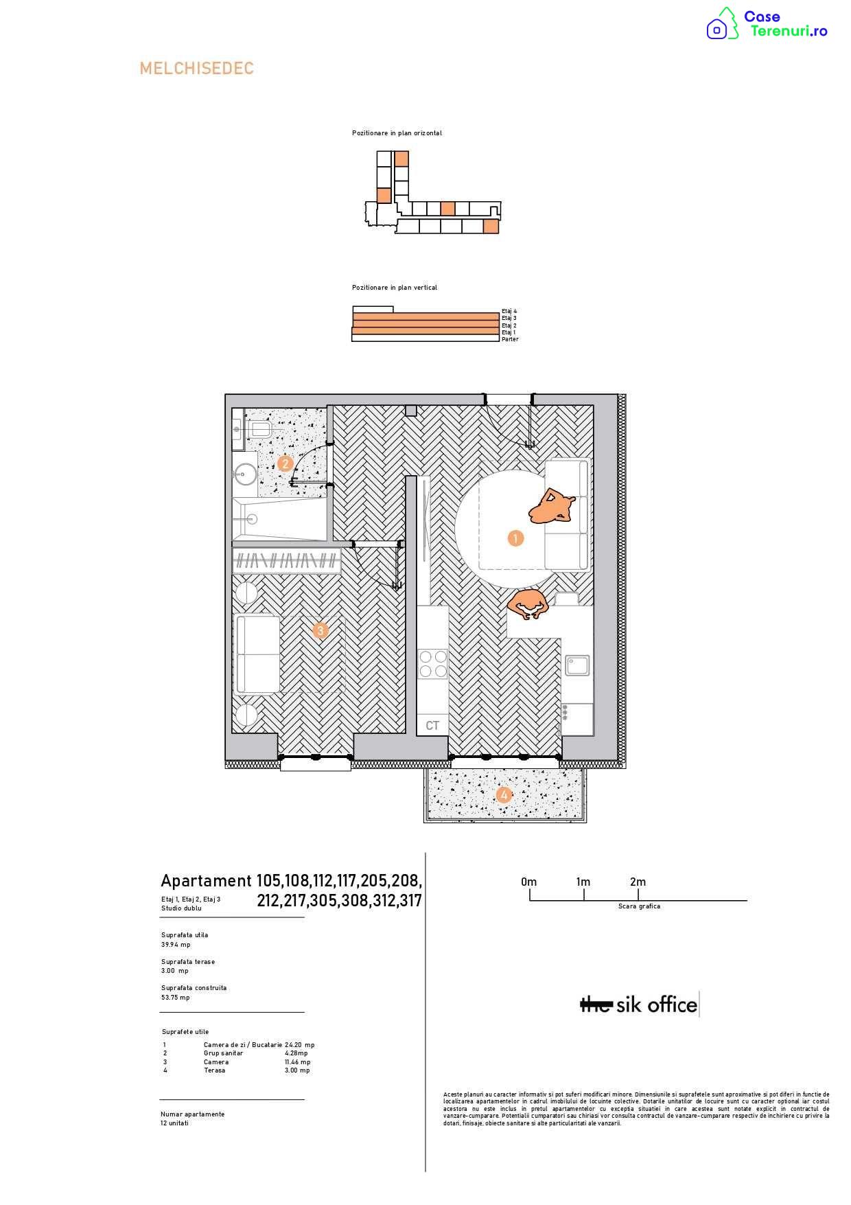
Te-ai săturat de zgomotul și agitația urbană, dar vrei totuși să fii aproape de tot ce contează? Imaginează-ți că te poți trezi într-o dimineață liniștită, într-un apartament modern, situat în centrul orașului, la câțiva pași de tot ce ai nevoie, înconjurat de un cartier de case, unde liniștea și confortul sunt la ordinea zilei.Blocul nostru este gândit pentru cei care își doresc să fie aproape de serviciu, școli, parcuri și magazine, dar fără să facă compromisuri în privința liniștii sau siguranței. Situat într-o zonă ultracentrală, vei avea la doar câteva minute de mers pe jos grădina publică, un loc perfect pentru relaxare, și școli de renume pentru copiii tăi. Iar în weekend, Shopping City Galați se află la doar 5 minute cu mașina, astfel încât să te bucuri de toate facilitățile de care ai nevoie.Proiectul este mai mult decât o simplă clădire. A fost conceput să ofere un echilibru între designul modern, funcționalitatea excelentă și un mediu de locuit confortabil. Spațiile comune sunt generoase, bine luminate și securizate, iar apartamentele sunt dotate cu echipamente de ultimă generație care fac viața de zi cu zi mai ușoară și mai plăcută.Locație ultracentrală:• Cartier rezidențial: Înconjurat de case, într-o zonă liniștită, perfectă pentru o viață fără agitația specifică centrului.• Grădina Publică la 5 minute: Ideală pentru plimbări sau activități recreative.• Facilități educaționale: Școli, universități și licee de prestigiu la doar câteva minute de mers pe jos.Conectivitate și accesibilitate• Transport public: Tramvai și autobuz la câteva minute de mers pe jos, facilitând deplasările zilnice.• Acces rapid la artere principale: Indiferent de destinația ta, vei ajunge ușor și rapid, fără să te pierzi în trafic.Confort și siguranță de top• Parcare securizată: Oferim locuri de parcare sigure, protejate 24/7.• Supraveghere video: Atât la interior cât și la exterior, pentru a-ți oferi liniște sufletească.Bloc modern, construit pentru durabilitate• Izolație termică și fonică: Apartamentele sunt construite cu pereti din beton armat ca să asigure confortul termic și o izolare fonică foarte buna, pentru ca zgomotul să rămână la distanță.• Finisaje de calitate: Tâmplăria termopan tripan Salamander Blue Evolution 73, tavan din rigips, parchet SPC și încălzire în pardoseală, toate asigurând un nivel ridicat de confort și eleganță.Dotări moderne în apartamente• Centrala termică Vaillant și aer condiționat cu Wi-Fi: Controlul temperaturii este la îndemâna ta, fie că ești acasă sau nu.• Videointerfon modern: Siguranță și acces facil pentru tine și familia ta.Acest bloc este mai mult decât o simplă clădire – este o investiție în stilul tău de viață. Cu locația ideală și toate facilitățile moderne de care ai nevoie, nu trebuie să mai cauți altundeva. Vino și descoperă cum ar putea arăta noul tău cămin!Sună-ne acum pentru o vizionare și alege confortul pe care îl meriți!Preturile sunt aproximative, exista mici variatii ale suprafetelor in functie de pozitionarea fiecarui apartament.Pretul nu contine TVA

Hartă Oraș

Contactează vânzătorul pentru "Apartament 2 Camere tip Studio de la Dezvoltator/Melchisedec Residence"

⬅️ Înapoi